Verlegerichtlinien
Verlegerichtlinien
Bitte wählen Sie eines oder mehrere Kapitel zum Download aus.
Inhaltsverzeichnis

Übersicht der Zubehörprofile

Beachten Sie, dass die Zubehörprofile passend zu den unterschiedlichen Profiltiefen von 22 mm und 32 mm abgestimmt wurden.

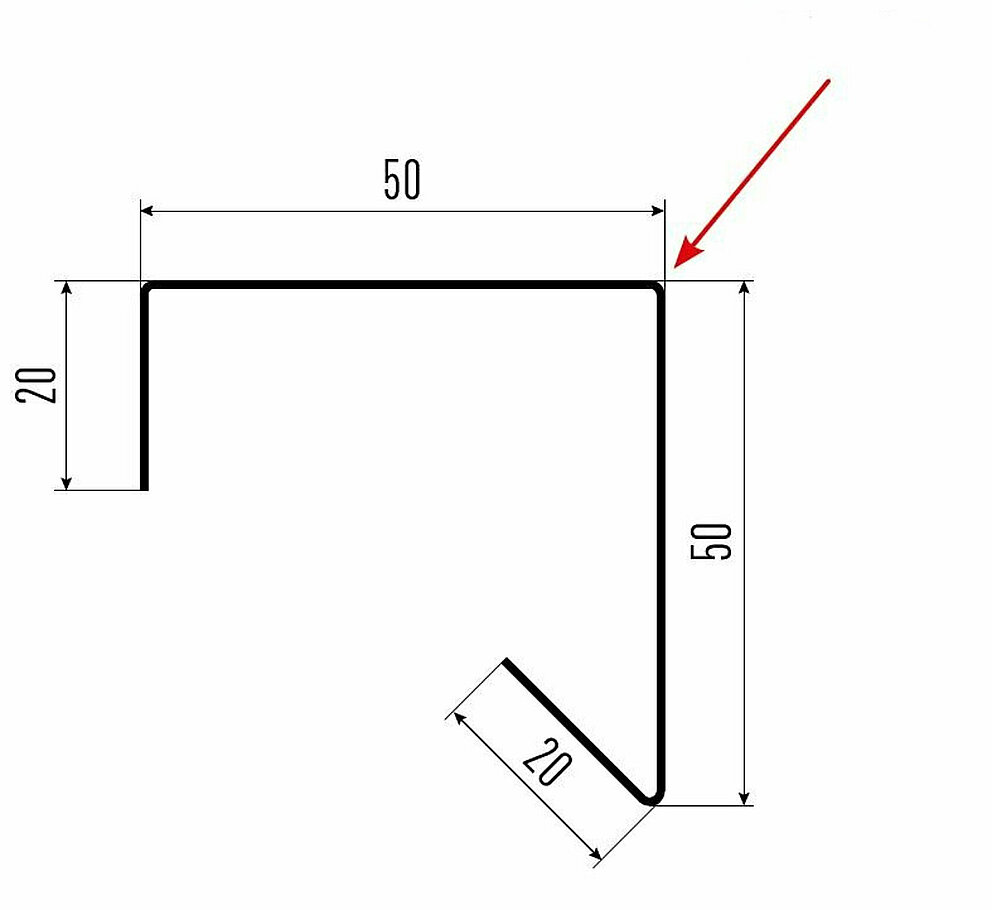
Alle Maßangaben in mm.

Zubehörprofile Profiltiefe 22 mm

Der Rote Pfeil kennzeichnet jeweils die Farbseite der Zubehörprofile.

Zubehörprofile Profiltiefe 32 mm

Der Rote Pfeil kennzeichnet jeweils die Farbseite der Zubehörprofile.

Zubehörprofile unabhängig der Profiltiefe

Der Rote Pfeil kennzeichnet jeweils die Farbseite der Zubehörprofile.